AT YOUR SERVICE
SERVICE PROCESS
想要立即住新家?想要裝修大升級?家裝分期來幫您忙
家裝分期0息季,馬上輕松住美家
裝修就用家裝分期,自有資金去投資,去旅游,去買買買...
家裝分期0息季,品質生活不打折
CORE STRENGTHS
身份證明+購房合同
月費率低至0%
最長8年,無壓力還款
建材/家飾/家電等均可用
APPLICATION PROCESS
1對1溝通,省心省力
綠色通道,急速審批
裝修范圍內消費均可
Q&A
家裝貸款也稱作裝修貸款,指銀行或者消費金融公司推出的,以家庭住房裝修為目的個人信用貸款即無抵押信用貸款。銀行發放的個人住房裝修貸款單筆貸款額度原則上不超過15萬元人民幣,同時不超過裝修工程總費用的50%。
家裝貸款有兩種貸款和一個信用卡分期形式可以申請,具體如下:1、申請個人信用貸款來裝修;2、個人消費貸款之裝修貸款。這里的消費貸款指的是持證抵押貸款,也就是用房產來抵押、申請的消費貸款。3、信用卡家裝分期;4、消費金融公司貸款除了銀行貸款這條傳統途徑外,向消費金融公司貸款也是可以選擇的途徑之一。
1.辦理渠道:借款人通過銀行開辦個人住房裝修貸款業務的分支機構申請辦理個人裝修貸款業務。 2.辦理流程: ①借款人申請辦理住房裝修貸款,須到開辦該項業務的營業網點提出申請,填寫申請表,提交相關資料、辦理有關擔保手續; ②客戶經理調查、審核同意后,報經有權審批部門審批同意后,簽訂借款合同; ③客戶經理辦理放款手續,將款項轉入借款人在我行個人結算賬戶上,客戶即可使用貸款資金; ④借款人到營業柜臺還款,或在存款賬戶或銀行卡上留足還款金額,委托貸款銀行代扣還款; ⑤貸款結清后,銀行與客戶解除債權債務關系,辦理有關手續.
貸款人申請裝修貸款,一般要向銀行提供如下材料: 1、有效身份證、居委會開具的常住戶口證明,證明自己的身份和固定住所; 2、單位出具的職業和個人收入證明、連續六個月及以上穩定工作證明(或者自己提供近幾個月的工資流動賬單),證明自己的還款能力; 3、房產證(抵押貸款需要),用于房產抵押; 4、銀行存款對賬單、水電等稅單證明,證明自己的信用品質; 5、與裝修企業簽訂的《裝修工程合同》、《購買裝修材料合同》等材料,證明貸款用途; 6、裝修企業的營業執照和資格證書復印件,證明合作商是否在指定范圍內; 7、銀行或金融機構需要的其他條件。
1.具有當地常住戶口及合法有效的身份證明; 2.有正當職業和穩定收入,具備到期償還貸款本息的能力。 3.借款人能提供有關資產證明、銀行對帳單、稅單證明等 4.對新購住宅裝修的應提供房屋買賣契約、購房發票等資料(或原有住宅再次裝修的應提供房屋所有權證明材料); 5.合作機構所規定的其它條件。
個人住房裝修貸款是指以家庭住房裝修(也有銀行為商用房提供裝修貸款)為目的,以借款人或第三人具有所有權或依法有權處分的財產、權利作為抵押物或質押物,或由第三人為貸款提供保證,并承擔連帶責任而發放的貸款。 住房裝修貸款為短期貸款,各大銀行期限會略有不同,不過一般都不會超過五年。住房裝修貸款一般以所購住房作抵押,貸款利率按照中國人民銀行規定的同期同檔次貸款利率執行,一般沒有利率優惠。 個人住房裝修貸款辦理方式:借款人通過中國建設銀行開辦個人住房裝修貸款業務的分支機構申請辦理個人裝修貸款業務。
1、個人住房裝修貸款是銀行向借款人發放的用于自有住房裝修的貸款。這里所說的住房裝修,是指使用裝飾裝修材料對住房進行修飾和加工處理的工程活動。就是說房產必須是自己的。 2、房屋裝修貸款中特殊要求是:要有與經有關部門批準的裝飾裝修企業所簽定的住房裝修合同、裝修概算書及相關資料;部分銀行也要求業主有不少于裝修總預算30%的自有資金,并在使用貸款前投入項目建設。 3、按銀行的規定個人消費貸款一般不允許提取現金。銀行會將款項打到裝修公司的賬戶中。 4、貸款期限一般不超過5年
1. 不具備貸款主體資格和基本條件; 2. 生產、經營或投資國家明文禁止的產品、項目; 3. 違反國家外匯管理規定; 4. 建設項目按國家規定應當報有關部門批準而未取得批準文件; 5. 生產經營或投資項目未取得環境保護部門許可; 6. 在實行承包、租賃、聯營、合并(兼并)、合作、分立、產權有償轉讓、股份制改造等體制變更過程中,未清償原有貸款債務、落實原有貸款債務或提供相應擔保; 7. 有其他嚴重違法經營行為。
COOPERATIVE BANK
SERVICE PROCESS
ONE-CLICK RESERVATION IS FREE
VALUE-ADDED SERVICES
資深全案設計師提供免費上門量房,免費裝修設計咨詢,免費全屋預算規劃,2-3天出平面設計方案,與客戶反復研磨設計方案,直到客戶滿意為止。
杰美與銀行聯合推出的家裝分期服務,無首付、低利息、手續簡單、放貸快以及一站貸齊(含家電),且全案設計師提供全屋裝修主材輔材詳細報價清單讓家裝全程無憂。
MEASURE THE ROOM FOR EVERY DETAIL
9 MAJOR PROJECT MANAGEMENT PROCESSES
6 STEPS TO START PREPARATION
PRECISE LINE LAYING PROCESS
PRECISE LINE LAYING PROCESS
01
平面設計圖
02
開工大吉
03
基礎裝修
04
水電工程
05
瓦工工程
06
木工工程
07
大白工程
08
業主評價
SERVICE PROCESS
DESIGN STEP
01
02
03
CUSTOM DESIGN
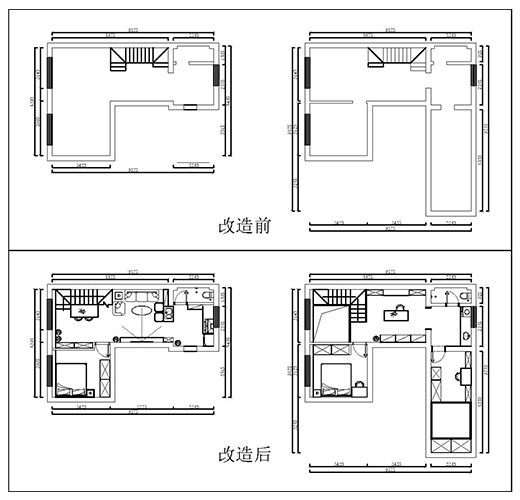
杰美裝飾全案設計師可根據客戶的戶型和客戶喜歡的家裝風格以及客戶的心里預算,為客戶量身定制設計圖
如果客戶對效果圖不滿意,在確定方案之前可免費無限次修改,直到客戶滿意為止,杰美裝飾將竭誠為您服務。
DESIGNERS TAKE STEPS TO MAKE BETTER USE OF SPACE
DESIGN STEP
NOW APPLY FOR TWO COMPLIMENTARY ITEMS

避開開發商誤差,1小時快速量房

合理節省裝修費用,助您了解裝修行情